Iris

Welcome to Iris, a beautifully designed Mid-Century Modern home that combines timeless architectural elegance with contemporary amenities. This two-story residence offers a total of 3,715 square feet, providing ample space for both comfortable living and stylish entertaining. With its distinct design and spacious layout, Iris stands as a testament to sophisticated modern living.

Exterior and Structure:

Iris embodies the essence of Mid-Century Modern architecture with its clean lines, expansive windows, and harmonious integration with the natural surroundings. The home spans an impressive 81 feet 4 inches in width and 34 feet in length, showcasing a balanced and visually appealing facade. The exterior features a blend of natural materials and sleek finishes, emphasizing simplicity and elegance.

Interior Layout:

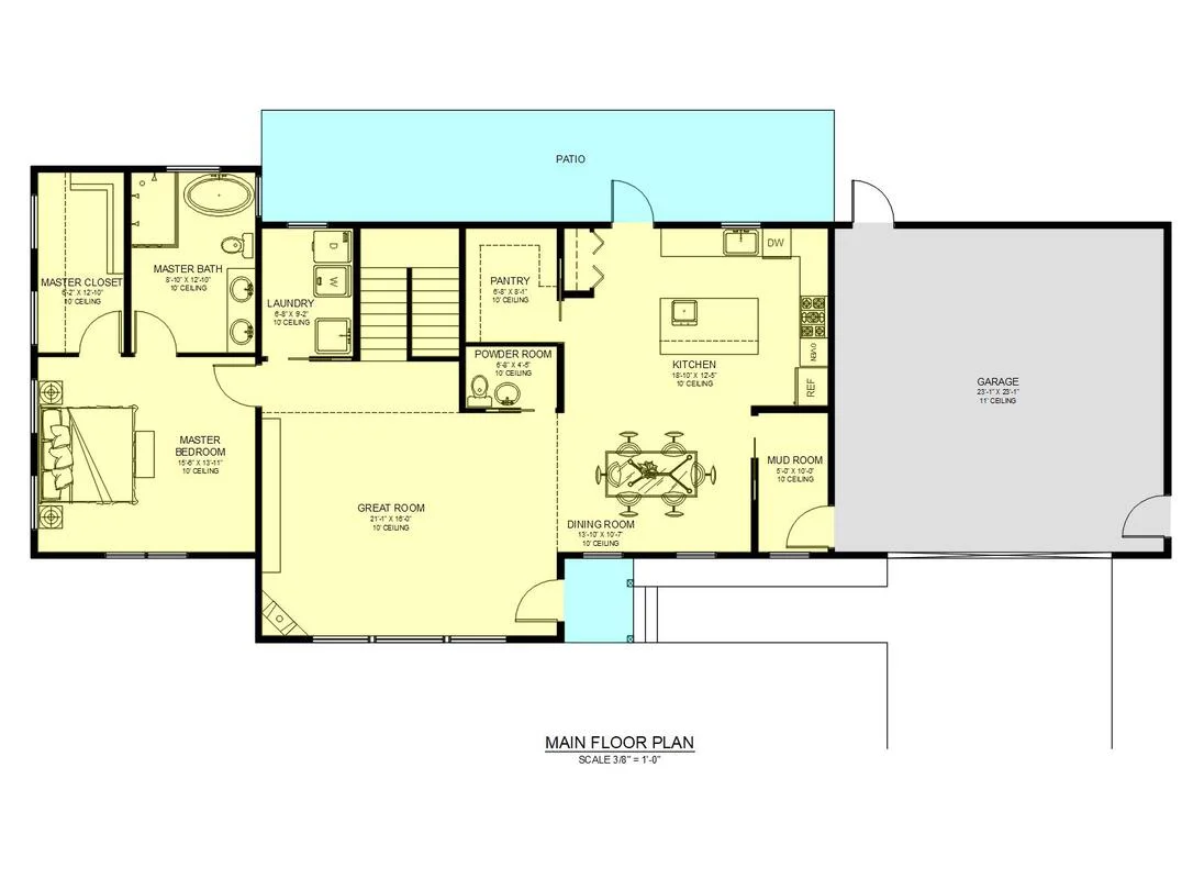
  • Bedrooms: The home includes three generously sized bedrooms, each thoughtfully designed to offer comfort and privacy. The master suite serves as a luxurious retreat, complete with a spacious walk-in closet and an elegantly appointed en-suite bathroom. The additional bedrooms are well-proportioned, ideal for family members or guests, ensuring everyone has their own private haven.
  • Bathrooms: Iris features two and a half bathrooms, all equipped with modern fixtures and high-end finishes. The master bathroom offers a spa-like experience with dual vanities, a soaking tub, and a separate shower. The second full bathroom serves the additional bedrooms, while the half bath on the main floor adds convenience for guests.
  • Living Space: The main living area of Iris is an open-concept design that seamlessly connects the living room, dining area, and kitchen. This layout promotes a sense of spaciousness and flow, perfect for both everyday living and entertaining. Large windows flood the space with natural light, creating a bright and inviting atmosphere.
  • Kitchen: The kitchen is a chef’s delight, featuring state-of-the-art appliances, ample counter space, and sleek, modern cabinetry. A large island serves as a focal point for casual dining and social gatherings. High-quality materials and meticulous attention to detail make this kitchen both functional and stylish.

Garage and Outdoor Space:

  • Garage: Iris includes a spacious two-car garage, providing secure parking and additional storage space. This feature adds convenience and ensures your vehicles are well-protected.
  • Outdoor Space: The outdoor areas of Iris are designed to complement the Mid-Century Modern aesthetic. Whether it’s a private patio or a landscaped garden, there are plenty of opportunities to enjoy the outdoors in style and comfort.

Design and Style:

  • Style: Iris embodies the core principles of Mid-Century Modern design, characterized by its emphasis on clean lines, functional spaces, and seamless indoor-outdoor living. The use of natural materials and contemporary finishes creates a home that is both timeless and modern.
  • Details: Throughout the home, attention to detail is evident in every aspect of the design. From the choice of premium materials to the thoughtful layout, every element of Iris is crafted to enhance your living experience. Modern lighting, custom fixtures, and high-quality finishes contribute to the home’s luxurious feel.

Overall:

Iris is a stunning example of Mid-Century Modern architecture, offering a perfect blend of style, comfort, and functionality. With its three bedrooms, two and a half bathrooms, and expansive living areas, this home provides a spacious and inviting environment ideal for families and those who love to entertain. The two-car garage and well-designed outdoor spaces add to its appeal, making it a perfect choice for contemporary living. Whether you are looking for a primary residence or a stylish retreat, Iris offers the ultimate in modern luxury and timeless elegance.