Ganimede

Introducing the Ganimede, a spacious and elegant New American style home that perfectly blends classic charm with modern amenities. This two-story residence offers ample space, luxurious features, and a thoughtful design, ideal for larger families or those who love to entertain.

Key Features

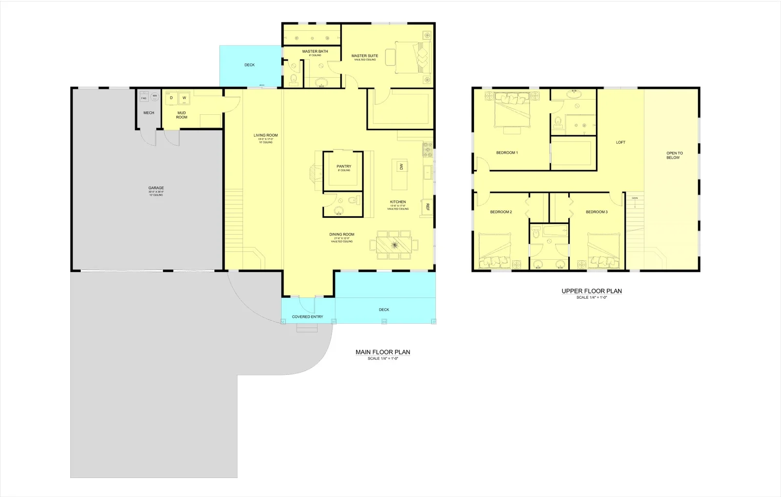
  • Bedrooms: 4
  • Bathrooms: 3.5
  • Total Finished Square Feet: 3,166
  • Total Square Feet: 4,480
  • Levels: 2
  • Basement: None
  • Garage: 3-Car

Dimensions

  • Width: 71′-0″
  • Length: 58′-6″

Design and Style

The Ganimede showcases a New American architectural style, characterized by its blend of traditional and contemporary elements. This home features a welcoming facade with a balanced combination of stone, wood, and siding materials, creating a timeless and appealing look.

Interior Details

Step inside the Ganimede and be greeted by a grand foyer that leads to an expansive open-concept living area. The main floor includes a spacious living room, a formal dining area, and a gourmet kitchen equipped with state-of-the-art appliances, ample counter space, and a large island perfect for meal prep and casual dining.

The main level also features a luxurious master suite with a private en-suite bathroom and a walk-in closet. Additionally, a guest bathroom and a versatile home office or study complete the first floor.

Upstairs, you will find three additional bedrooms, each generously sized and equipped with ample closet space. Two full bathrooms ensure convenience for family and guests. A large bonus room or family area provides additional living space, perfect for a media room, playroom, or second living room.

Garage and Outdoor Space

The Ganimede includes a three-car garage, offering plenty of space for vehicles, storage, and hobbies. The expansive width and depth of the home allow for a beautifully landscaped yard, ideal for outdoor activities, gardening, and entertaining.

Location and Lifestyle

Perfectly suited for suburban or semi-rural settings, the Ganimede offers a serene and comfortable lifestyle with easy access to modern conveniences. The home’s design is perfect for those who appreciate spacious living areas, high-end finishes, and a blend of indoor and outdoor living.

Additional Information

The Ganimede is more than just a home; it’s a retreat. With its generous living spaces, modern amenities, and elegant design, this property offers everything you need for a comfortable and luxurious lifestyle.