Fitzroy

Welcome to Fitzroy, an exquisite Mid-Century Modern home that perfectly blends iconic architectural design with contemporary luxury. This expansive two-story residence offers a total of 6,647 square feet, including finished living spaces and ample areas for both entertainment and relaxation. With its striking design and spacious layout, Fitzroy is the epitome of elegance and sophistication.

Exterior and Structure:

Fitzroy showcases the timeless appeal of Mid-Century Modern architecture with its clean lines, large windows, and seamless integration with the surrounding landscape. The house spans 72 feet 6 inches in width and 39 feet 8 inches in length, presenting a balanced and aesthetically pleasing facade. The exterior features a harmonious blend of natural materials and modern finishes, emphasizing simplicity and functionality.

Interior Layout:

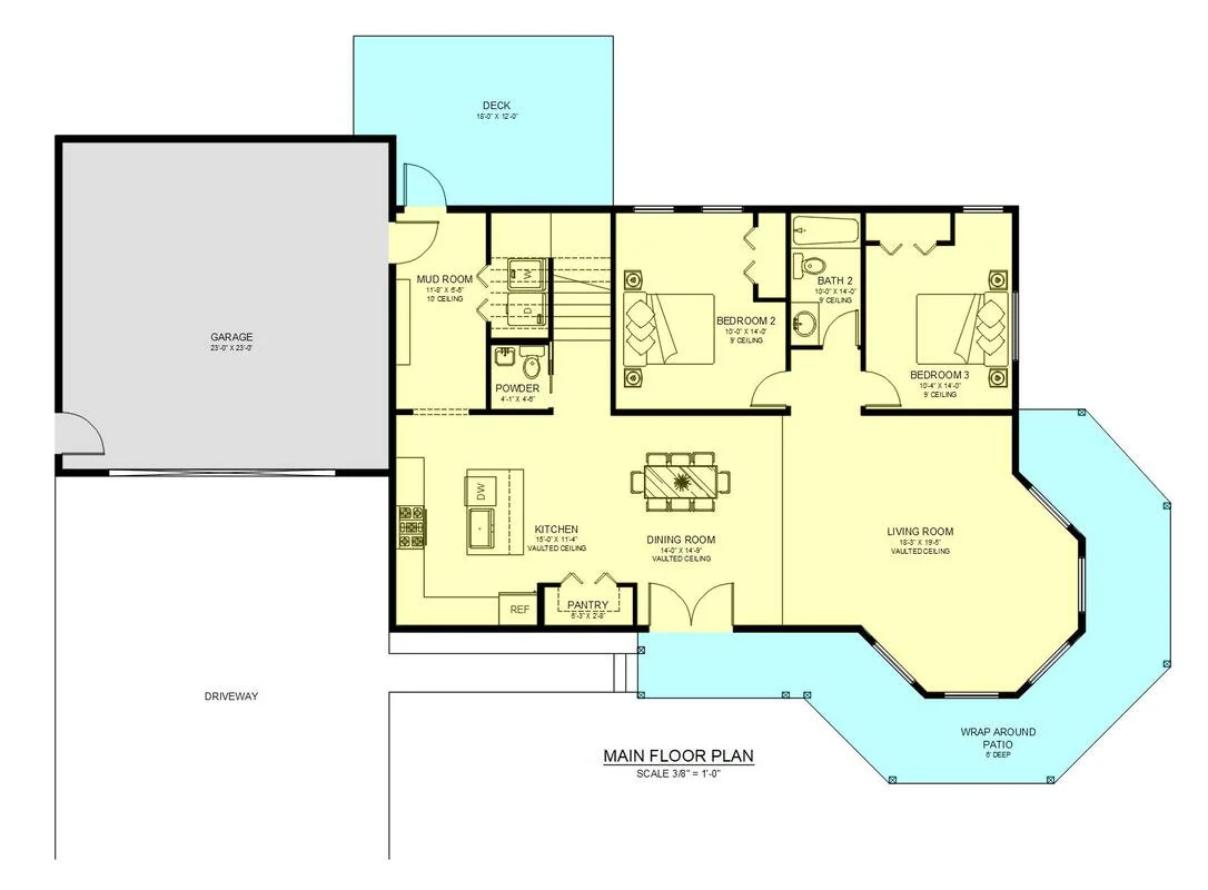
  • Bedrooms: The home includes three generously sized bedrooms, each designed to offer comfort and privacy. The master suite is a luxurious retreat, complete with a spacious walk-in closet and a well-appointed en-suite bathroom. The additional bedrooms provide ample space for family members or guests, each with thoughtfully designed layouts to ensure maximum comfort.
  • Bathrooms: Fitzroy features two and a half bathrooms, each equipped with modern fixtures and high-end finishes. The master bathroom offers a spa-like experience with dual vanities, a soaking tub, and a separate shower. The second full bathroom serves the other bedrooms, while the half bath on the main floor adds convenience for guests.
  • Living Space: The main living area of Fitzroy is an open-concept design that seamlessly connects the living room, dining area, and kitchen. This layout fosters a sense of spaciousness and flow, ideal for both daily living and entertaining. Floor-to-ceiling windows allow for abundant natural light, creating a bright and inviting atmosphere.
  • Kitchen: The kitchen is a chef’s paradise, featuring top-of-the-line appliances, ample counter space, and sleek, modern cabinetry. Its design includes a large island that serves as a focal point for casual dining and social gatherings. High-quality materials and meticulous attention to detail make this kitchen both functional and stylish.

Garage and Outdoor Space:

  • Garage: Fitzroy includes a spacious two-car garage, providing secure parking and additional storage space. This feature adds convenience and ensures your vehicles are protected.
  • Outdoor Space: The outdoor areas of Fitzroy are designed to complement the Mid-Century Modern aesthetic. Whether it’s a private patio, a landscaped garden, or a serene courtyard, there are plenty of opportunities to enjoy the outdoors in style and comfort.

Design and Style:

  • Style: Fitzroy embodies the essence of Mid-Century Modern design, characterized by its emphasis on simplicity, functionality, and seamless indoor-outdoor living. The use of natural materials and clean lines creates a home that is both timeless and contemporary.
  • Details: Throughout the home, attention to detail is evident in every aspect of the design. From the choice of premium materials to the thoughtful layout, every element of Fitzroy is crafted to enhance your living experience. Modern lighting, custom fixtures, and high-quality finishes contribute to the home’s luxurious feel.

Overall:

Fitzroy is a stunning example of Mid-Century Modern architecture, offering a perfect blend of style, comfort, and functionality. With its three bedrooms, two and a half bathrooms, and expansive living areas, this home provides a spacious and inviting environment ideal for families and those who love to entertain. The two-car garage and well-designed outdoor spaces add to its appeal, making it a perfect choice for contemporary living. Whether you are looking for a primary residence or a stylish retreat, Fitzroy offers the ultimate in modern luxury and timeless elegance.