Cedar Mountain

Cedar Mountain features a classic cabin design with a warm and inviting facade. The house spans 32 feet in width and 28 feet in length, creating a compact yet functional footprint that fits seamlessly into natural surroundings.

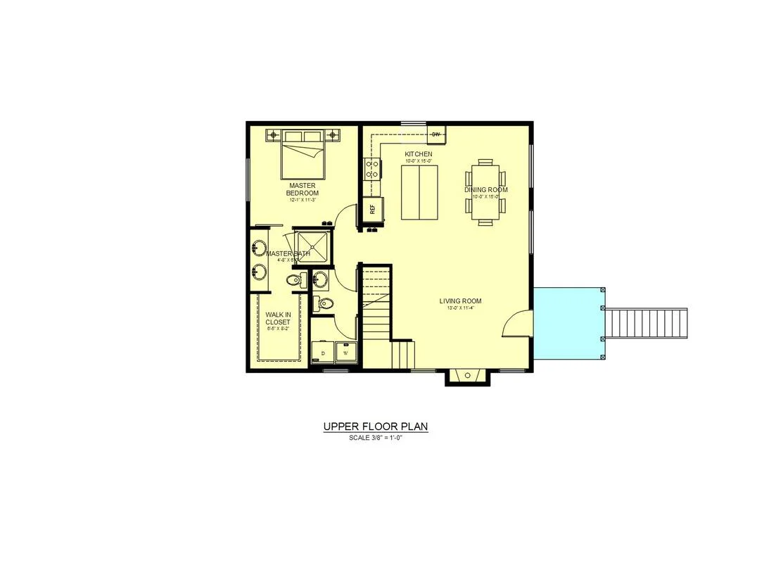
Interior Layout:

  • Bedrooms: The home includes three well-proportioned bedrooms, providing comfortable sleeping quarters for family and guests. The master suite is a private haven with ample closet space and an en-suite bathroom, while the additional bedrooms offer flexibility for children, guests, or a home office.
  • Bathrooms: Cedar Mountain is equipped with two and a half bathrooms. The master bathroom features modern amenities and a thoughtful layout, while the additional full bathroom serves the other bedrooms. The half bathroom on the main floor adds convenience for guests and everyday use.
  • Living Space: The main floor of Cedar Mountain offers an open-concept living area that includes a cozy living room, a dining area, and a well-appointed kitchen. Large windows throughout the home bring in natural light and offer views of the surrounding landscape, enhancing the warm and inviting atmosphere.
  • Kitchen: The kitchen is designed for both functionality and style, featuring modern appliances, ample storage, and a practical layout that makes cooking and entertaining a breeze. Its design complements the rustic charm of the cabin style while providing all the conveniences of contemporary living.
  • Basement: The finished basement adds valuable living space to the home, perfect for a family room, recreation area, or additional storage. This versatile space enhances the overall functionality and appeal of Cedar Mountain.

Garage and Outdoor Space:

  • Garage: The property includes a one-car garage, providing secure and convenient parking as well as extra storage for outdoor equipment and tools.
  • Outdoor Space: Cedar Mountain’s design includes outdoor areas that are perfect for enjoying the natural surroundings. Whether it’s a front porch or a back deck, there are plenty of opportunities to relax and soak in the serene environment.

Design and Style:

  • Style: Cedar Mountain embodies the charm and simplicity of cabin-style architecture. With its use of natural materials, cozy design, and harmonious integration with the landscape, this home offers a peaceful retreat from the hustle and bustle of everyday life.
  • Details: Throughout the home, attention to detail is evident in the choice of materials and finishes. From the warm wood tones and rustic accents to the modern conveniences and thoughtful layout, every aspect of Cedar Mountain is designed to provide comfort and style.

Overall:

Cedar Mountain is a delightful cabin-style home that offers a perfect blend of rustic charm and modern amenities. With its three bedrooms, two and a half bathrooms, and spacious living areas, this home is ideal for families or anyone looking for a cozy retreat. The addition of a finished basement and a one-car garage enhances its functionality and appeal. Whether you are looking for a primary residence or a weekend getaway, Cedar Mountain provides a warm and inviting space to call home.