Canyon

The Canyon, a charming farmhouse-style residence that combines rustic elegance with modern conveniences. This beautiful two-story home offers a generous 3,609 square feet of total space, providing ample room for comfortable living and entertaining.

Exterior and Structure:

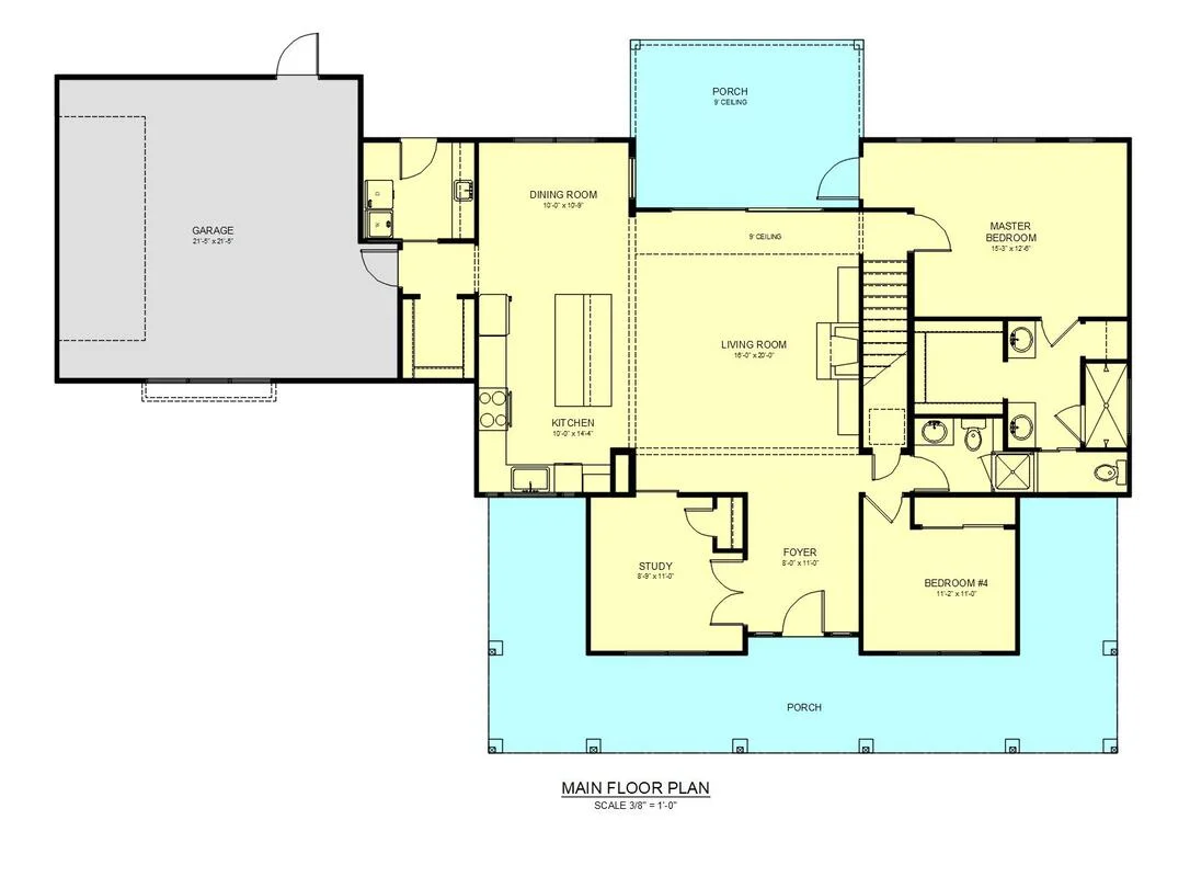
Canyon boasts a traditional farmhouse design with a wide, inviting facade. The house stretches 77 feet in width and 41 feet 6 inches in length, creating a substantial footprint that highlights its classic architectural appeal.

Interior Layout:

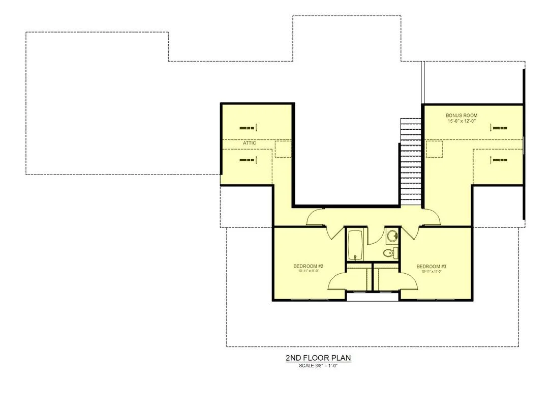
  • Bedrooms: The home features four spacious bedrooms, each designed to provide a peaceful retreat for family members or guests. The master suite includes a luxurious bathroom and ample closet space, while the additional bedrooms are well-sized and versatile, perfect for children, guests, or a home office.
  • Bathrooms: With three well-appointed bathrooms, Canyon ensures comfort and convenience for all residents. The bathrooms feature modern fixtures and finishes, offering a blend of style and functionality.
  • Living Space: The main living area encompasses an open-concept design, seamlessly connecting the living room, dining area, and kitchen. This layout fosters a sense of community and ease of movement, ideal for both daily living and entertaining. Large windows throughout the home allow natural light to flood the interior, enhancing the warm and welcoming atmosphere.  This floor plan has a total of 2,427 square feet of finished living space.
  • Additional Spaces: Beyond the main living areas, Canyon includes additional spaces that cater to various needs. From cozy nooks to functional utility rooms, every inch of the home is designed with practicality and comfort in mind.

Garage and Outdoor Space:

  • Garage: The property includes a two-car garage, providing secure and convenient parking. The garage also offers extra storage space, accommodating all your storage needs.
  • Outdoor Space: The expansive outdoor area is perfect for creating your dream garden, a patio for outdoor entertaining, or a playground for children. The farmhouse style extends to the exterior, with a welcoming front porch and potential for beautiful landscaping.

Design and Style:

  • Style: Canyon exemplifies the timeless charm of farmhouse architecture, with its classic lines, inviting porch, and rustic details. The design seamlessly blends traditional farmhouse elements with modern touches, creating a home that is both nostalgic and contemporary.
  • Details: High-quality finishes and thoughtful design elements are evident throughout the home. From the exterior’s sturdy construction and charming details to the interior’s elegant fixtures and open layout, every aspect of Canyon is crafted to enhance your living experience.

Overall:

Canyon is the perfect blend of farmhouse charm and modern luxury. With its spacious layout, stylish design, and well-thought-out features, this home offers an ideal living environment for families and those who love to entertain. The combination of four bedrooms, three bathrooms, and ample living space makes Canyon a versatile and welcoming home for any lifestyle. Whether you are looking for a cozy retreat or a place to gather with loved ones, Canyon provides the perfect setting for a beautiful and comfortable life.